• Home
  • Proyectos
    • Educación
    • Oficinas
    • Hoteles
    • Viviendas
  • Publicaciones
  • Contacto
9-kavanagh
1-kavanagh
2-kavanagh
3-kavanagh
4-kavanagh
5-kavanagh
6-kavanagh
7-kavanagh
8-kavanagh
9-kavanagh
10-kavanagh
11-kavanagh
12-kavanagh
13-kavanagh
14-kavanagh

Otros proyectos

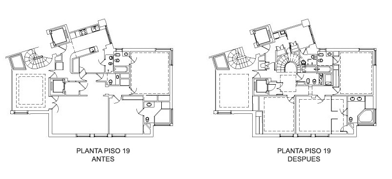
Departamento Edificio Kavanagh Actual
Volver a Proyectos

Edificio Kavanagh

Departamento Edificio Kavanagh

Información

Memoria Descriptiva
© Ixtus IPP
Usar flechas para navegarlo